Nowe mieszkanie Orunia Górna - Gdańsk Południe, ul. Erwiny Barzychowskiej
Erwiny Barzychowskiej, Orunia Górna - Gdańsk Południe, Gdańsk, pomorskie
- 795 504 zł
- 76,89 m²
- 10 346 zł/m²
Biuro Sprzedaży
Skontaktuj się
Nowe mieszkanie Orunia Górna - Gdańsk Południe, ul. Erwiny Barzychowskiej
Erwiny Barzychowskiej, Orunia Górna - Gdańsk Południe, Gdańsk, pomorskie
zaktualizowane:
2 grudnia 2025
Nowe mieszkanie Orunia Górna - Gdańsk Południe, ul. Erwiny Barzychowskiej
Inwestycja: Oxygen Park
Zaktualizowane: 2 grudnia 2025
795 504 zł 76,89 m² 10 346 zł/m²
III kwartał 2026
4/4
4
garaż
deweloperski
Zobacz na mapie
Termin realizacji:
III kwartał 2026Piętro:
4/4Liczba pokoi:
4Miejsce postojowe:
garażStan mieszkania:
deweloperskiSzczegóły ogłoszenia
- Typ oferty: nowe mieszkanie na sprzedaż
- Cena: 795 504 zł (10 346 zł/m²)
- Termin realizacji: III kwartał 2026
- Status oferty: dostępne
- Rynek: pierwotny (oferta dewelopera)
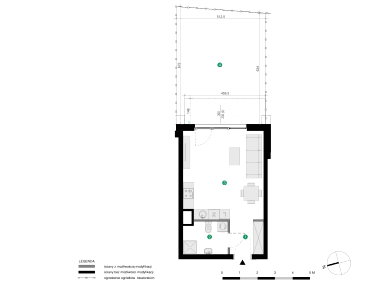
- Charakterystyka mieszkania: 76,89 m², 4 pokoje, 2 łazienki; stan: deweloperski
- Budynek: blok mieszkalny
- winda
- Rozkład mieszkania: piętro 4/4, jednopoziomowe
- Powierzchnia dodatkowa: balkon (6,1 m²)
- Kuchnia: aneks kuchenny
- Miejsce/a postojowe: w garażu wielostanowiskowym, przynależne do mieszkania - bez obowiązku zakupu (184 miejsca); garaż w bryle budynku
naziemne, przynależne do mieszkania - bez obowiązku zakupu (52 miejsca) - Bezpieczeństwo: monitoring
- Źródło: oferta dewelopera: Monting Development, zaktualizowane: 02.12.2025
- sygnatura ogłoszenia: H.4.M02
Lokalizacja
- Inwestycja: Oxygen Park
- Adres: Erwiny Barzychowskiej, Orunia Górna - Gdańsk Południe, Gdańsk, pomorskie
- Otoczenie: osiedle bloków mieszkalnych, tereny zielone i rekreacyjne
- Na terenie inwestycji: plac zabaw, siłownia zewnętrzna, paczkomat, recepcja, ogrody deszczowe, zielone tarasy, łąki kwietne, mini warsztat dla miłośników majsterkowania, strefa grillowa, plac z fontanną, wybieg dla psów, ponad 400 posadzonych drzew, oddalone od siebie budynki o 50 metrów, Wąwóz Potoku Kowalskiego w sąsiedztwie, rowerownia, bujna zieleń, przystanek autobusowy 150 m , stacja PKM 6 minut pieszo - wkrótce
- W pobliżu przedszkole, szkoła podstawowa, restauracja, przystanek autobusowy (150m), centrum handlowe, park (700m), wąwóz potoku kowalskiego, wybieg dla psów, las
Opis nieruchomości
Zapraszamy do zapoznania się z ofertą 4-pokojowego mieszkania, składającego się z pokoju dziennego z aneksem kuchennym, trzech sypialni, dwóch łazienek i (...)

Inwestycja realizowana przez:
Monting Development
Biuro Sprzedaży
Ofiar Grudnia 70/49
Gdańsk 80-180
| MieszkanieWirtualna wizytaG.0.M08 | 43,97 m² | 12 129 zł/m² | parter/4 | 2 | 533 312 zł |
| MieszkanieWirtualna wizyta | ||||
|
||||
| G.0.M08 |
- Budynek: blok mieszkalny
- Stan wykończenia: deweloperski, możliwe wykończenie "pod klucz"
- Charakterystyka mieszkania: jednopoziomowe, aneks kuchenny, 1 łazienka
- Ogrzewanie: miejskie
- Powierzchnia dodatkowa: ogródek (47 m²)
- Miejsce/a postojowe:: w garażu wielostanowiskowym, przynależne do mieszkania - bez obowiązku zakupu (184 miejsca); garaż w bryle budynku
naziemne, przynależne do mieszkania - bez obowiązku zakupu (52 miejsca) - Udogodnienia: winda
Zapraszamy do zapoznania się z ofertą 2-pokojowego mieszkania, składającego się z pokoju dziennego z aneksem kuchennym, sypialni, łazienki i ogródka.
Więcej
sygnatura: G.0.M08
| MieszkanieWirtualna wizytaH.4.M01 | 66,51 m² | 10 303,10 zł/m² | 4/4 | 3 | 685 259 zł |
| MieszkanieWirtualna wizyta | ||||
|
||||
| H.4.M01 |
| MieszkanieE.0.M09 | 31,88 m² | 12 244 zł/m² | parter/4 | 1 | 390 339 zł |
| Mieszkanie | ||||
|
||||
| E.0.M09 |
| MieszkanieE.1.M02 | 78,15 m² | 9 844 zł/m² | 1/4 | 4 | 769 309 zł |
| Mieszkanie | ||||
|
||||
| E.1.M02 |
| MieszkanieE.1.M10 | 33,09 m² | 11 909 zł/m² | 1/4 | 1 | 394 069 zł |
| Mieszkanie | ||||
|
||||
| E.1.M10 |
| MieszkanieE.2.M02 | 77,97 m² | 10 045 zł/m² | 2/4 | 4 | 783 209 zł |
| Mieszkanie | ||||
|
||||
| E.2.M02 |
| MieszkanieE.2.M04 | 42,70 m² | 12 118 zł/m² | 2/4 | 2 | 517 439 zł |
| Mieszkanie | ||||
|
||||
| E.2.M04 |
| MieszkanieE.4.M03 | 42,56 m² | 12 519 zł/m² | 4/4 | 2 | 532 809 zł |
| Mieszkanie | ||||
|
||||
| E.4.M03 |
| MieszkanieF.0.M04 | 42,50 m² | 12 340 zł/m² | parter/4 | 2 | 524 450 zł |
| Mieszkanie | ||||
|
||||
| F.0.M04 |
| MieszkanieF.1.M02 | 78,15 m² | 9 844 zł/m² | 1/4 | 4 | 769 309 zł |
| Mieszkanie | ||||
|
||||
| F.1.M02 |
Więcej
Biuro Sprzedaży
799 370...
799 370 965











